上馬の家
東京都世田谷区に計画している地下1階地上3階建ての都市型住宅。
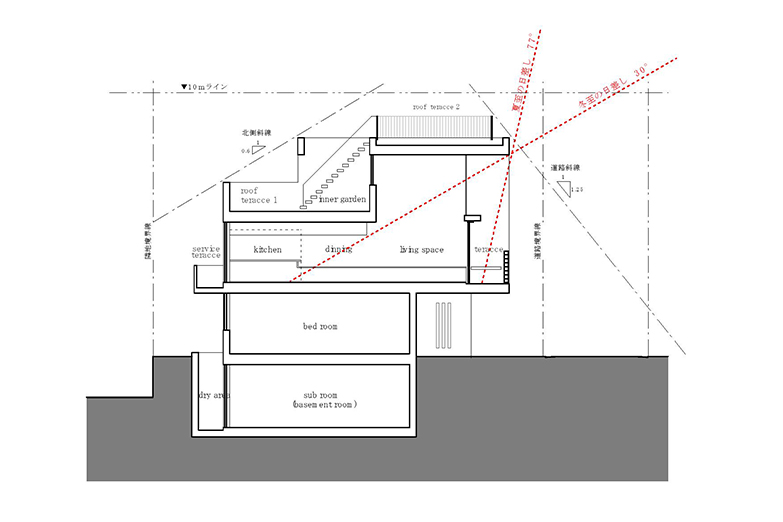
鉄筋コンクリート造の建物であり、建築面積16坪の住宅である。若い夫婦二人と子供二人のための住宅であり、今後、家族が増えることにも対応できるような計画が望まれた。法規制が許す最大限の範囲で床面積そして高さを確保し、なるべくシンプルな箱となるようにデザインしている。外観はコンクリート打放しで、内部は自然素材を可能な限り用いることを考えている。周辺環境から2階に家族の集いのためのメインの空間を配置し、吹抜けや大開口を持ってくることで、光あふれ風が吹き抜ける快適な空間を目指している。
| 所 在 地 | 東京都世田谷区 |
| 用 途 | 住宅(家族6人構成) |
| 敷地面積 | 108.92㎡(32.95坪) |
| 建築面積 | 54.45㎡(16.47坪) |
| 述床面積 | 156.45㎡(47.33坪) |
| 階 数 | 地下1階地上3階建て |
| 構 造 | 鉄筋コンクリート造(壁構造) |
| 設 計 | 株式会社 堀尾建築設計事務所 堀尾一仁氏と共同 |
| 構造設計 | 有限会社 ビーファーム |
| 完 了 | 実施設計業務まで |
| 写 真 | 株式会社 RIN 建築設計事務所 |















